MitsuStyle MitsuStyle

Go Back   MitsuStyle > The Homefront! > The Parking Lot - On & Off Topic

Reply
 
Thread Tools Display Modes
Old 01-02-2015   #1
Halon
Pewp Champion
 
Halon's Avatar
 

Join Date: Nov 2003
Location: Blaine
Drives: Teh Bean
Posts: 12,309
Send a message via AIM to Halon
Re: House Projects

Go big or go home right?

Bought some stuff today from Best Buy Magnolia. Was a real nice guy, came to our house to do a consultation, so just decided to get stuff from him and be done. He knocked a whole bunch of money off so pay no attention to the list prices, and I'll get 10% back from reward zone points.

Front towers
http://www.bestbuy.com/site/bowers-a...&skuId=4828009

Center
http://www.bestbuy.com/site/bowers-w...&skuId=4826038

Surrounds and Atmos
http://www.amazon.co.uk/Sonance-Visu.../dp/B00LA5KFWC

Receiver
http://www.bestbuy.com/site/denon-16...&skuId=4158023

Also got all my cabling from them as well as a small equipment rack. Glad that's done and over with. Next I'm just waiting on some Amazon gift cards to show up so I can order up the Benq.
__________________
B-Man - FlexFuel Mafia
1991 TSi AWD E85 - BEP S362, DSMLink V2, Built 2.0L Idle Vid 628hp Graph 541hp Vid 10.93@137 Vid
1992 SC300 E85 - BW 84-75, Vlad Infinity, NA-T, 6spd Idle Vid 709hp Graph 709hp Vid 11.1@131 Vid
2006 Bayliner 195 - Carbed 5.0 Top Speed Test

Last edited by Halon; 01-03-2015 at 12:40 PM..
Halon is offline   Reply With Quote
Old 01-03-2015   #2
Speedfreak
 

Join Date: Jul 2004
Location: MN
Drives: four tires
Posts: 1,608
Re: House Projects

Quote:
Originally Posted by Halon View Post
Go big or go home right?

Bought some stuff today from Best Buy Magnolia. Was a real nice guy, came to our house to do a consultation, so just decided to get stuff from him and be done. He knocked a whole bunch of money off so pay no attention to the list prices, and I'll get 10% back from reward zone points.

Front towers
http://www.bestbuy.com/site/bowers-w...&skuId=1290573

Center
http://www.bestbuy.com/site/bowers-w...&skuId=4826038

Surrounds and Atmos
http://www.amazon.co.uk/Sonance-Visu.../dp/B00LA5KFWC

Receiver
http://www.bestbuy.com/site/denon-16...&skuId=4158023

Also got all my cabling from them as well as a small equipment rack. Glad that's done and over with. Next I'm just waiting on some Amazon gift cards to show up so I can order up the Benq.
Nice setup. I'd like to check it out when all done.
__________________
NSX - S480/Built motor
GSX - 571whp/490wtq
Sienna
Speedfreak is offline   Reply With Quote
Old 01-03-2015   #3
Halon
Pewp Champion
 
Halon's Avatar
 

Join Date: Nov 2003
Location: Blaine
Drives: Teh Bean
Posts: 12,309
Send a message via AIM to Halon
Re: House Projects

Quote:
Originally Posted by Speedfreak View Post
Nice setup. I'd like to check it out when all done.
What you doing for the Super Bowl? Goal is to have it done for that, swing by and bring the kid.
__________________
B-Man - FlexFuel Mafia
1991 TSi AWD E85 - BEP S362, DSMLink V2, Built 2.0L Idle Vid 628hp Graph 541hp Vid 10.93@137 Vid
1992 SC300 E85 - BW 84-75, Vlad Infinity, NA-T, 6spd Idle Vid 709hp Graph 709hp Vid 11.1@131 Vid
2006 Bayliner 195 - Carbed 5.0 Top Speed Test
Halon is offline   Reply With Quote
Old 01-03-2015   #4
Speedfreak
 

Join Date: Jul 2004
Location: MN
Drives: four tires
Posts: 1,608
Re: House Projects

Quote:
Originally Posted by Halon View Post
What you doing for the Super Bowl? Goal is to have it done for that, swing by and bring the kid.
I'll be just up the road in Blaine at Asad's yearly SB party. I'll see if I can make something work to stop by.
__________________
NSX - S480/Built motor
GSX - 571whp/490wtq
Sienna
Speedfreak is offline   Reply With Quote
Old 01-03-2015   #5
turbotalon1g
 
turbotalon1g's Avatar
 

Join Date: Mar 2005
Location: Blaine, MN
Drives: '91 Automagic
Posts: 13,908
Send a message via AIM to turbotalon1g
Re: House Projects

Quote:
Originally Posted by Halon View Post
Ha, jiggas like you are the only ones allowed in!
:woot:

Quote:
Originally Posted by Speedfreak View Post
I'll be just up the road in Blaine at Asad's yearly SB party. I'll see if I can make something work to stop by.
Do it!
__________________
Aaron/brownman/big brown.
'91 Automagic.
'02 Z06
Please leave feedback - http://www.dsmtuners.com/forums/itrader.php?u=58309
turbotalon1g is offline   Reply With Quote
Old 01-02-2015   #6
turbotalon1g
 
turbotalon1g's Avatar
 

Join Date: Mar 2005
Location: Blaine, MN
Drives: '91 Automagic
Posts: 13,908
Send a message via AIM to turbotalon1g
Re: House Projects

hayzeus mary and joseph.

Gonna be some balling ass shit going on here, can a jigga like me even get into a room like dat?
__________________
Aaron/brownman/big brown.
'91 Automagic.
'02 Z06
Please leave feedback - http://www.dsmtuners.com/forums/itrader.php?u=58309
turbotalon1g is offline   Reply With Quote
Old 01-03-2015   #7
Halon
Pewp Champion
 
Halon's Avatar
 

Join Date: Nov 2003
Location: Blaine
Drives: Teh Bean
Posts: 12,309
Send a message via AIM to Halon
Re: House Projects

Quote:
Originally Posted by turbotalon1g View Post
hayzeus mary and joseph.

Gonna be some balling ass shit going on here, can a jigga like me even get into a room like dat?
Ha, jiggas like you are the only ones allowed in!
__________________
B-Man - FlexFuel Mafia
1991 TSi AWD E85 - BEP S362, DSMLink V2, Built 2.0L Idle Vid 628hp Graph 541hp Vid 10.93@137 Vid
1992 SC300 E85 - BW 84-75, Vlad Infinity, NA-T, 6spd Idle Vid 709hp Graph 709hp Vid 11.1@131 Vid
2006 Bayliner 195 - Carbed 5.0 Top Speed Test
Halon is offline   Reply With Quote
Old 01-03-2015   #8
scheides
flips McGee
 
scheides's Avatar
Re: House Projects

Dayum Brandon nice! That is a hella nice setup, hopefully pretty nice bang for the buck. Love to see pics of the rack and everything once it's all setup.
__________________
Quote:
Originally Posted by Murlo26 View Post
I need to listen to Scheides more often i think :)
Quote:
Originally Posted by turbotalon1g View Post
...I realized that I can't keep up my shit talking without anything to back it up.
Quote:
Originally Posted by JV
S2000: For those of us that know the Miata is the best car on the planet, but also want extra power and to not have to turn in our man cards.
scheides is offline   Reply With Quote
Old 01-03-2015   #9
Halon
Pewp Champion
 
Halon's Avatar
 

Join Date: Nov 2003
Location: Blaine
Drives: Teh Bean
Posts: 12,309
Send a message via AIM to Halon
Re: House Projects

Cool, if not maybe one day we grab lunch up this way and check it out.

PS - I'm sure whatever setup he has would put mine to shame, haha.
__________________
B-Man - FlexFuel Mafia
1991 TSi AWD E85 - BEP S362, DSMLink V2, Built 2.0L Idle Vid 628hp Graph 541hp Vid 10.93@137 Vid
1992 SC300 E85 - BW 84-75, Vlad Infinity, NA-T, 6spd Idle Vid 709hp Graph 709hp Vid 11.1@131 Vid
2006 Bayliner 195 - Carbed 5.0 Top Speed Test
Halon is offline   Reply With Quote
Old 01-03-2015   #10
A//// Guy
 
A//// Guy's Avatar
 
Bloody Seal Bounce Champion!
Join Date: Oct 2003
Location: South Burbs
Drives: Slowly
Posts: 9,870
Re: House Projects

Pimpin to the max! No ebay this time! haha

Looks good, cant wait to see the finished room.
A//// Guy is offline   Reply With Quote
Old 01-03-2015   #11
Halon
Pewp Champion
 
Halon's Avatar
 

Join Date: Nov 2003
Location: Blaine
Drives: Teh Bean
Posts: 12,309
Send a message via AIM to Halon
Re: House Projects

0% interest for 36 months too, so that makes it easier. Also lesson learned for me that Magnolia the prices are not fixed. Anyone else ever looking to buy from there. Make sure you try to work a deal. They knocked a butt load off for me.
__________________
B-Man - FlexFuel Mafia
1991 TSi AWD E85 - BEP S362, DSMLink V2, Built 2.0L Idle Vid 628hp Graph 541hp Vid 10.93@137 Vid
1992 SC300 E85 - BW 84-75, Vlad Infinity, NA-T, 6spd Idle Vid 709hp Graph 709hp Vid 11.1@131 Vid
2006 Bayliner 195 - Carbed 5.0 Top Speed Test
Halon is offline   Reply With Quote
Old 01-05-2015   #12
Halon
Pewp Champion
 
Halon's Avatar
 

Join Date: Nov 2003
Location: Blaine
Drives: Teh Bean
Posts: 12,309
Send a message via AIM to Halon
Re: House Projects

Benq W1070 and a mount have been ordered off Amazon, should be here Wednesday.

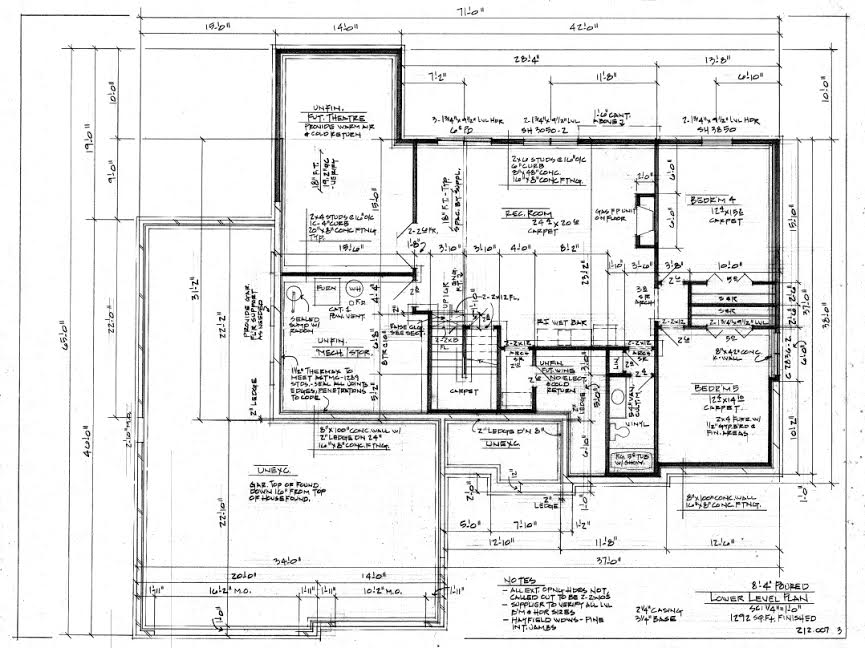
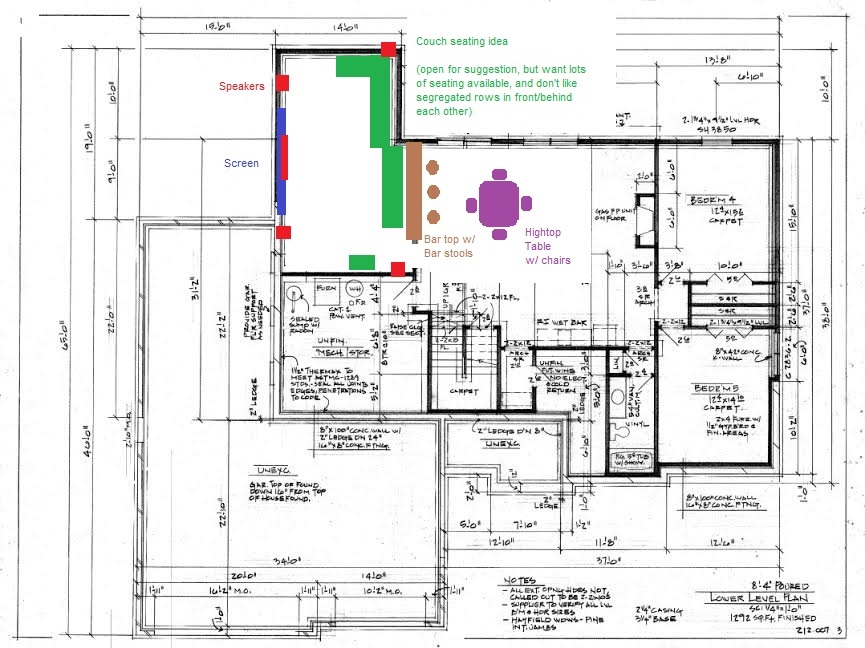
Construction is starting today, so I'll be littering this thread with pics. Here's some shitty sketches I made that show the general idea of how the room will be setup.

So again, it'll be about a 100" screen (project on painted wall) w/ Benq W1070 projector. Sound will be Dolby Atmos 5.1.2. Sonance in ceiling speakers for surrounds and Atmos (these speakers don't just point down, the point at an angle). Then B&W 693 towers up front with the matching B&W center. Denon 4100 receiver. Then just use our old Samsung Bluray player. For TV we just have uber basic cable, so I have to see if Comcast can give us an HD capable converter box, otherwise I'll have to do like brownman and get an antenna/tuner setup for just OTA stuff.

Furniture we haven't bought yet, so that pic is just our idea. For now it'll just be some misc furniture in there.
Attached Thumbnails
Click image for larger version

Name:	before.jpg
Views:	476
Size:	91.0 KB
ID:	14879   Click image for larger version

Name:	after lighting.jpg
Views:	467
Size:	171.5 KB
ID:	14880   Click image for larger version

Name:	after projector.jpg
Views:	465
Size:	180.4 KB
ID:	14881  

Click image for larger version

Name:	after speakers.jpg
Views:	474
Size:	177.0 KB
ID:	14882   Click image for larger version

Name:	after general layout.jpg
Views:	490
Size:	163.5 KB
ID:	14883   Click image for larger version

Name:	Wall Before.jpg
Views:	487
Size:	205.1 KB
ID:	14884  

Click image for larger version

Name:	Arch 1.jpg
Views:	495
Size:	193.3 KB
ID:	14885  
__________________
B-Man - FlexFuel Mafia
1991 TSi AWD E85 - BEP S362, DSMLink V2, Built 2.0L Idle Vid 628hp Graph 541hp Vid 10.93@137 Vid
1992 SC300 E85 - BW 84-75, Vlad Infinity, NA-T, 6spd Idle Vid 709hp Graph 709hp Vid 11.1@131 Vid
2006 Bayliner 195 - Carbed 5.0 Top Speed Test
Halon is offline   Reply With Quote
Old 01-05-2015   #13
A//// Guy
 
A//// Guy's Avatar
 
Bloody Seal Bounce Champion!
Join Date: Oct 2003
Location: South Burbs
Drives: Slowly
Posts: 9,870
Re: House Projects

Excited to see the progress. Id seriously consider not doing that open window to the other room, if I were you. I would keep it a dedicated theater room with sound insulated walls and ceiling so that sound doesnt go all through the house. We did this on my parents basement theater room in their old house, helped quiet things down.

Id also put the projected wall to be the shorter backyard wall, that way you can do stadium seating in that room with 2 couches one in front of the other. But if you keep your existing set up, it will be nice either way.

Also your downstairs is open to the lower level if i remember correctly, so the sound will travel upstairs easily.

Otherwise plan on keeping the volume down low on that serious speaker system, so the baby can sleep.

Last edited by A//// Guy; 01-05-2015 at 12:36 PM..
A//// Guy is offline   Reply With Quote
Old 01-05-2015   #14
Halon
Pewp Champion
 
Halon's Avatar
 

Join Date: Nov 2003
Location: Blaine
Drives: Teh Bean
Posts: 12,309
Send a message via AIM to Halon
Re: House Projects

Thanks for the thoughts. I'll spare all the details, we've been thinking about this since we built the house. After 2 years of consideration of several different setups, including the way you mentioned, this is what we've finally decided on that we like best for us. To each their own!

I agree your way is better if you're going purely for a straight up movie theater.
__________________
B-Man - FlexFuel Mafia
1991 TSi AWD E85 - BEP S362, DSMLink V2, Built 2.0L Idle Vid 628hp Graph 541hp Vid 10.93@137 Vid
1992 SC300 E85 - BW 84-75, Vlad Infinity, NA-T, 6spd Idle Vid 709hp Graph 709hp Vid 11.1@131 Vid
2006 Bayliner 195 - Carbed 5.0 Top Speed Test
Halon is offline   Reply With Quote
Old 01-05-2015   #15
Goat Blower
aka Goodbye
 
Goat Blower's Avatar
 
Asteroids Champion! Beach Squirter Champion!
Join Date: Oct 2003
Location: under the car
Drives: Taylor Made R15
Posts: 7,765
Re: House Projects

Woot! Going to be adding to this thread a bunch in the next year, big projects coming soon! Bigger garage/man cave, separate living rooms, bar, landscaping, etc. More to come.
__________________
2009 Corvette Z51-SOLD
1992 Mitsubishi Eclipse GSX-SOLD
2013 BMW Z4-Current summer hooptie
2017 GMC Yukon-Current winter hooptie

Goat Blower is offline   Reply With Quote
Old 01-05-2015   #16
A//// Guy
 
A//// Guy's Avatar
 
Bloody Seal Bounce Champion!
Join Date: Oct 2003
Location: South Burbs
Drives: Slowly
Posts: 9,870
Re: House Projects

Cool, why not get rid of the door all together and make it all open with maybe a post at the left side of the bar if its a load bearing wall?
A//// Guy is offline   Reply With Quote
Old 01-05-2015   #17
Halon
Pewp Champion
 
Halon's Avatar
 

Join Date: Nov 2003
Location: Blaine
Drives: Teh Bean
Posts: 12,309
Send a message via AIM to Halon
Re: House Projects

You mean like this sketch that I made, which we highly considered, but decided against?



Like I said, we considered lots of different options, we didn't make this decision over night.
Attached Thumbnails
Click image for larger version

Name:	Arch 2.jpg
Views:	482
Size:	158.9 KB
ID:	14886  
__________________
B-Man - FlexFuel Mafia
1991 TSi AWD E85 - BEP S362, DSMLink V2, Built 2.0L Idle Vid 628hp Graph 541hp Vid 10.93@137 Vid
1992 SC300 E85 - BW 84-75, Vlad Infinity, NA-T, 6spd Idle Vid 709hp Graph 709hp Vid 11.1@131 Vid
2006 Bayliner 195 - Carbed 5.0 Top Speed Test
Halon is offline   Reply With Quote
Old 01-05-2015   #18
tpunx99GSX
 
tpunx99GSX's Avatar
 
Tournaments Won: 3

Join Date: Oct 2003
Location: Maple Grove, MN
Drives: Lancer and Durango
Posts: 7,017
Send a message via ICQ to tpunx99GSX Send a message via AIM to tpunx99GSX Send a message via MSN to tpunx99GSX Send a message via Yahoo to tpunx99GSX
Re: House Projects

NO YOU MUST CHANGE YOUR MIND DAMMIT!
__________________
Scientific theories are the most reliable, rigorous, and comprehensive form of scientific knowledge. This is significantly different from the common usage of the word "theory", which implies that something is a conjecture, hypothesis, or guess.
tpunx99GSX is offline   Reply With Quote
Old 01-05-2015   #19
Halon
Pewp Champion
 
Halon's Avatar
 

Join Date: Nov 2003
Location: Blaine
Drives: Teh Bean
Posts: 12,309
Send a message via AIM to Halon
Re: House Projects

Peter forgot to mention since you mentioned soundboard, the ceiling and the wall to the furnace room will have soundboard to prevent it from atleast coming through the floor into the kitchen. The wall with the big hole, not doing any soundboard because well it has a huge hole in it haha.
__________________
B-Man - FlexFuel Mafia
1991 TSi AWD E85 - BEP S362, DSMLink V2, Built 2.0L Idle Vid 628hp Graph 541hp Vid 10.93@137 Vid
1992 SC300 E85 - BW 84-75, Vlad Infinity, NA-T, 6spd Idle Vid 709hp Graph 709hp Vid 11.1@131 Vid
2006 Bayliner 195 - Carbed 5.0 Top Speed Test
Halon is offline   Reply With Quote
Old 01-05-2015   #20
A//// Guy
 
A//// Guy's Avatar
 
Bloody Seal Bounce Champion!
Join Date: Oct 2003
Location: South Burbs
Drives: Slowly
Posts: 9,870
Re: House Projects

Yea I figured you thought about that, just curious if its a huge added expense or why you wouldnt go with no door if you want open air. Or just frame in the door to be a square with no actual door. Although it would help with a little sound deflection if you keep it.

Not trying to tell you what to do, since you seem a bit defensive, just tossing out ideas lol.

Im surprised you arent doing the work yourself, or at least framing stuff/sheetrocking in yourself and then having someone mud and tape.

Good stuff!
A//// Guy is offline   Reply With Quote
Reply


Posting Rules
You may not post new threads
You may not post replies
You may not post attachments
You may not edit your posts

BB code is On
Smilies are On
[IMG] code is On
HTML code is Off



All times are GMT -5. The time now is 03:58 AM.


Powered by vBulletin® Version 3.8.4
Copyright ©2000 - 2026, Jelsoft Enterprises Ltd.